< img height="1" width="1" style="display:none" src="https://www.facebook.com/tr?id=692944559725730&ev=PageView&noscript=1" />

Maison spatiale 02

Maison spatiale 02

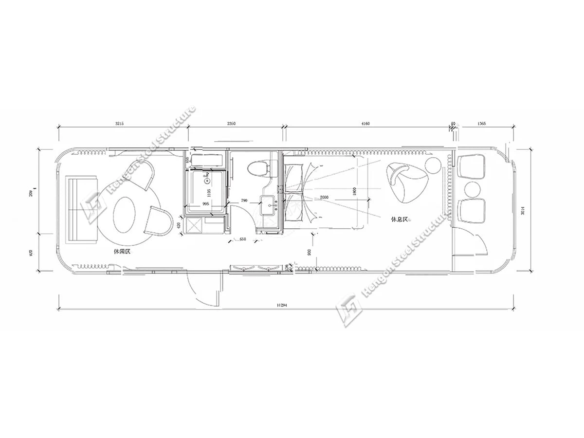
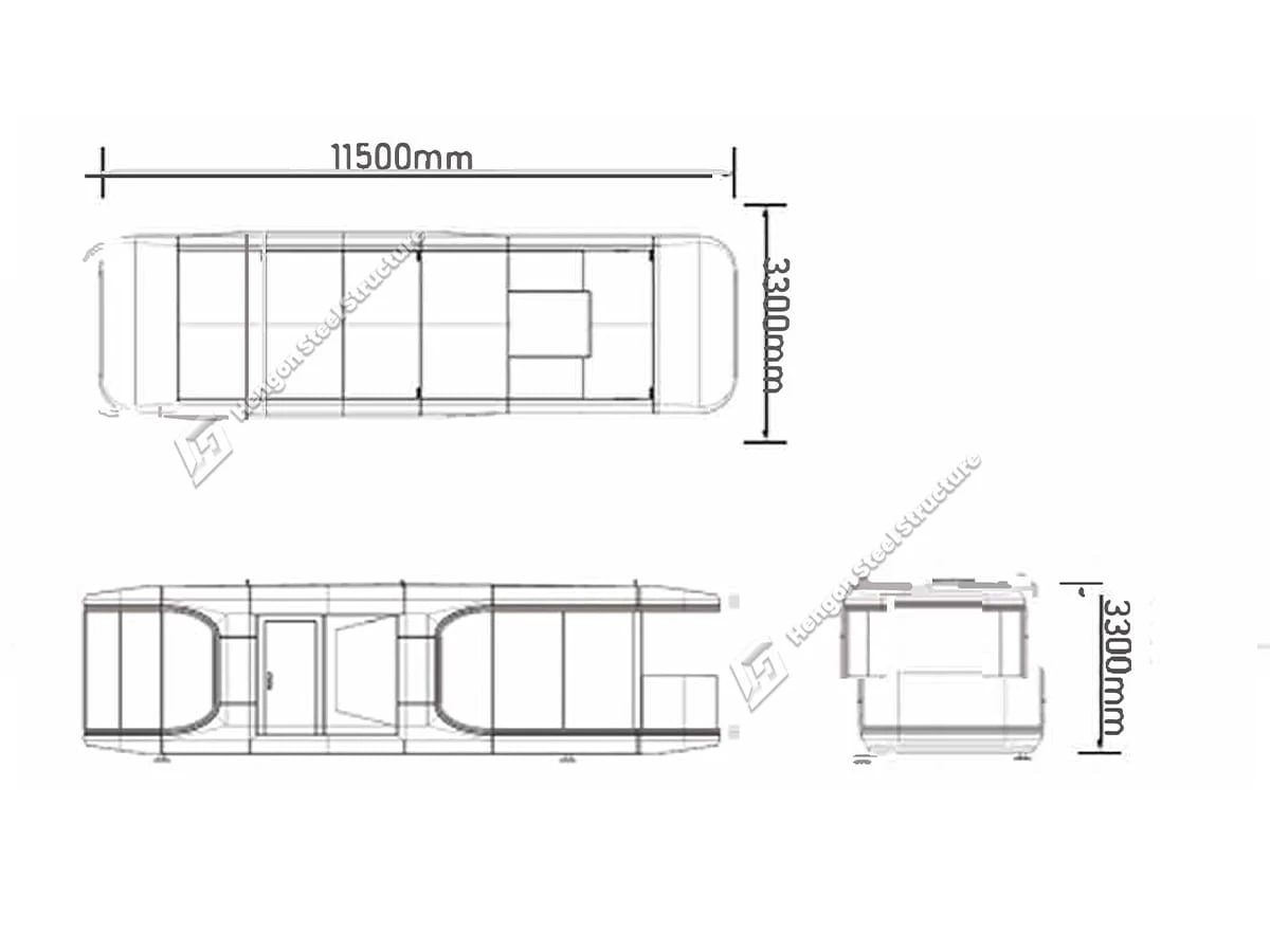
Size: 11500mm3300mm*3300mm 38m²
2
2
2
2
2
2
2
2

·  Peut être équipé d'une salle de bain, assemblé avec plusieurs unités, avec cuisine, etc.

·  Toutes les installations sont préfabriquées en usine pour vous, vous pouvez donc emménager directement après avoir raccordé l'eau et l'électricité.

·  Chargé dans un conteneur FR.

·  Maison d'habitation, bureau, logement, etc.


Enquête