--en mettant l'accent sur le climat local chaud, les fortes précipitations et la forte corrosion.
| Cas de projets | |||||
| Pays | Iloilo aux Philippines | Année | 2024 | ||
| Projet d'information | |||||
| Projet | Entrepôt à structure métallique | Dimension | 39.4mx22.4mx8m | Vitesse du vent | 250km/h |
| Matériel | H-steel | Paint | Alykd paint | Purline | C purline 180mmx70mmx20mmx2mm |
| Toit | Toit en tôles ondulées en acier V840 0,5mm, isolation en mousse EPE 12mm avec fil inoxydable support | Hauteur du brique | Paroi en brique pleine | ||
| Door | Porte en acier galvanisé | Gutter | SS304 1,5mm | Conteneurs | 2x40HQ |
| Photos du projet | |||||
![]() | |||||
En raison du climat chaud et pluvieux aux Philippines, nous recommandons à nos clients d’ajouter une isolation en mousse d’Éthylène Polymère (EPE) de 12 mm pour le toit. Et il y a un filet en acier inoxydable 304 de 1,2 mm pour le soutenir, alors c’est plus beau et durable après installation.


Nous avons également conçu une grande charnière en inox 304 large de 1,22 m pour résister aux fortes pluies. Et comme la haute corrosion à l'extérieur de la zone côtière, le client a demandé une épaisseur de 1,5 mm.

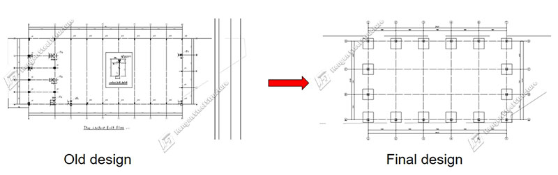
Initialement, le client nous fournissait seulement un croquis. Après des discussions approfondies avec notre consultant projet, notre équipe d’ingénierie a...

Six mois plus tard, ce client a soumis un nouveau dessin et a demandé un nouveau design, très différents du premier. Nous avons modifié le design en conséquence, et vu les faibles coûts salariaux locaux, nous avons également remplacé les murs à construire en brique locale.

Dernier, nous avons signé le contrat avec une garantie de livraison de 30 jours. Le client a demandé la livraison anticipée des boulons d’ancrage pour les travaux de fondation, et nous Hengguan( fabricant de magasin de structure métallique) prenons la charge de livraison.

Dernier mais pas le moindre, le client a été très satisfait de signer le contrat alors que les prix de l’Acier étaient très bas. Nous sommes également ravis de nous engager dans une coopération avec lui et nous attendons avec impatience à une collaboration plus longue. Nous assurerons la qualité et le service et maintiendrons nos prix compétitifs.
Plus d'informations sur ce projet de magasin en structure métallique et notre entreprise, n'hésitez pas à nous contacter.