-Le client a répondu:Nous l'adorons. C'est très agréable
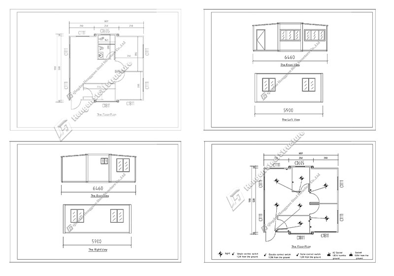
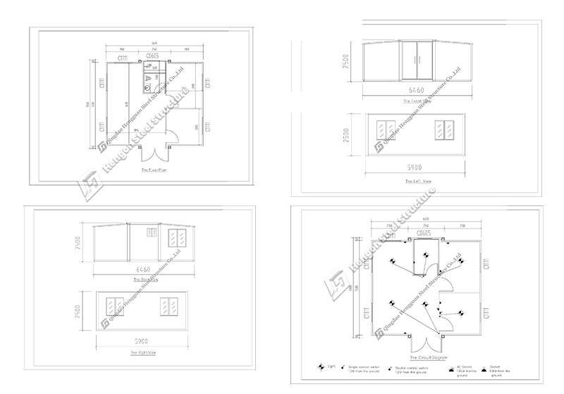
Ce client a commandé deux unités 20ft maison pliable: une pour le dortoir des employés et une pour les bureaux. Le client voulait qu’il y ait une partition de sécurité, alors nous avons ajouté une partition intérieure et une grande fenêtre à la demande du client.




Ce client nous avait commandé un entrepôt en ciment, a découvert nos maisons expansibles grâce à notre post WhatsApp. Impressionné par notre service et notre qualité, il a rapidement confirmé cette nouvelle commande après discussion des détails.
| Project Cases | |||||
| Pays | USA | Année | 2024 | ||
| Projet d'information | |||||
| Projet | 20ft maison pliable bureaux& dortoir | Dimension | 6.46mx5.9mxH2.5m | Structure | Galisé |
| Mur | Panneau sandwich EPS 50mm | Chambres | Salle d'habitation : 2 chambres Bureaux : 3 cloisons | Salle de bains | Préfabriqué |
| sol | 1,6mm PVC carrelage céramique pour la salle de bains | Cuisine | Préfabriqué | Électricité | US standard préfabriqué |
| Door | Aluminum Thermal Break Tempered Glass Door 1820*2260 | Windows | Aluminum Thermal Break Vitre Temprée fenêtre : 930*1100, 1800*1100 | Conteneurs | 1x40HQ |
Ce client a choisi le blanc-gris pour l’extérieur de la maison. Les fenêtres et portes vitrées utilisent un section en alu avec section thermique en acier inoxydable et double vitrage trempé pour une isolation et une résistance au vent renforcées.


Nous avons expédié à temps après 15 jours.

Ce client était très satisfait après l'installation et nous a donné une note de 5 étoiles.

