< img height="1" width="1" style="display:none" src="https://www.facebook.com/tr?id=692944559725730&ev=PageView&noscript=1" />

Atelier en Algérie

Atelier en Algérie

Country: Algeria

Year: 2019

Atelier en Algérie
Atelier en Algérie
Atelier en Algérie
Atelier en Algérie
Atelier en Algérie
Atelier en Algérie
Atelier en Algérie
Atelier en Algérie
Atelier Algérie
PaysAlgérieAnnée2019
Project Information
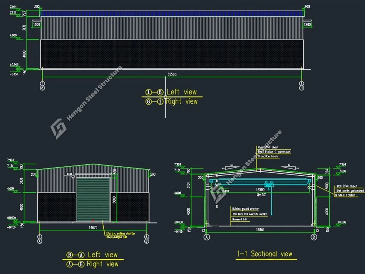
ProjetBâtiments préfabriquésDimension36x15x7 ( avec 5T sur grue)Vitesse du vent29m/s
MatérielAcier H soudéPaintAlykd paintPurlineC purline
160x60x20x2
AncreM20*800 Conteneurs2x40HQ ship container
ToitFeuille d'acier ondulée V840 0,4 mm
MurFeuille de acier ondulé V900 0.4mm
DoorÉlectricité rouleau portant 4.5mx6mx2, avec toit préfabriqué
BoltsBoulons haute résistance pour la connexion des colonnes et des poutres;
Boulons de commen pour la connexion des chevilles;
Étai auto-tapping pour la connexion des feuilles simples;
Clous pour la connexion des finitions
Project Pictures

 

atelier


atelier


atelier