< img height="1" width="1" style="display:none" src="https://www.facebook.com/tr?id=692944559725730&ev=PageView&noscript=1" />

Algérie - Entrepôt

Algérie - Entrepôt

Country: Algeria

Year: 2022

Algérie - Entrepôt
Algérie - Entrepôt
Algérie - Entrepôt
Algérie - Entrepôt
Algérie - Entrepôt
Algérie - Entrepôt
Algérie - Entrepôt
Algérie - Entrepôt
usine algérienne Pharmaceutique
-- L'agrandissement de l'usine signifie que le business prospère
PaysAlgérieAnnée2022
Projet d'information
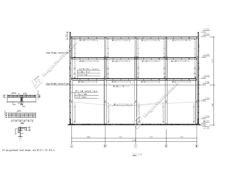
ProjetUsine pharmaceutiqueDimension35.62*30.99*22m (Three floors)Vitesse du vent120km/h
MatérielH-steelPaintAlykd paintPurlineC purline 180x70x20x2
ToitPanneau sandwich EPS 0.4mm+50mm 12kg+0.4mmFloorplancher ondulé galvanisé 0.8mmxV720Hauteur du mur en brique1.2m
DoorPorte rabattable 3x4x2mDecoration sheet2.5mm*450mm feuille d alliage d'aluminium jauneConteneurs19x40HQ

 

Algérie - Magasin


Algérie - Magasin


Algérie - Magasin